
用于控制各种高炉冷风放风阀排气的空气动力性噪声。
技术特点
1、采用狭缝出流的降噪原理,设计新颖,用于阻塞和非阻塞喷注,能满足高炉放风工艺要求。
2、适用放风量:60000-528000 m3/h。
3、适用放风压力:0.098-0.49M Pa。
4、消声量:20-50dB(A)。
5、压力损失:<2000Pa。
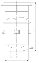
规格选用表
| 型号规格 | 适用风量 | 适用压力(MPa) | 外形尺寸(㎜) | 法兰尺寸(㎜) | 消声量dB(A) | 压力 | |||
| (m3/h) | 直径 | 长度 | 管道直径d1 | 中心距 | n-φ | 损失(Pa) | |||
|
|
D | L | d2 |
|
|||||
| GLF-1 | 60000 | 0.17 | 1900 | 5500 | 600 | 705 | 20-φ26 | 20-50 | <2000 |
| 84000 | 0.16 | ||||||||
| 90000 | 0.16-0.18 | ||||||||
| GLF-2 | 108000 | 0.14 | 2200 | 6000 | 800 | 920 | 24-φ30 | 20-50 | <2000 |
| 120000 | 压缩比0.35 | ||||||||
| 132000 | 0.35 | ||||||||
| GLF-3 | 162000 | 0.16 | 2500 | 6500 | 900 | 1020 | 24-φ30 | 20-50 | <2000 |
| 180000 | 压缩比0.40 | ||||||||
| GLF-4 | 195000 | 0.28 | 2600 | 7000 | 1000 | 1120 | 28-φ30 | 20-50 | <2000 |
| 214800 | 0.28 | ||||||||
| GLF-5 | 255000 | 0.3 | 2700 | 8000 | 1200 | 1340 | 32-φ30 | 20-50 | <2000 |
| 270000 | 压缩比0.40 | ||||||||
| GLF-6 | 360000 | 压缩比0.40 | 2800 | 9500 | 1400 | 1560 | 36-φ30 | 20-50 | <2000 |
| GLF-7 | 528000 | 压缩比0.45-0.50 | 2840 | 10000 | 1500 | 1660 | 40-φ30 | 20-50 | <2000 |

